

Đây là một ngôi nhà nhỏ có diện tích 3,5mx7m, trong cộng đồng người Việt gốc Hoa tại quận Bình Tân (TP HCM)

Để tiết kiệm chi phí, các kiến trúc sư đã đơn giản hóa các chi tiết, vật liệu và nội thất cũng như tối ưu hóa các không gian chức năng và giảm chiều cao mỗi tầng.


Điểm nhấn của ngôi nhà là chiếc cầu thang độc đáo không chỉ dùng làm cầu thang mà còn là góc trồng hoa, đọc sách hay ngồi thư giãn.


Kiến trúc sư đề nghị không trát vữa cho ngôi nhà mà dùng luôn gạch thô để làm mặt tiền cũng như nội thất, sau khi hoàn thành ngôi nhà khiến ai cũng phải xuýt xoa vì quá đẹp.

Cổng và hàng rào được thiết kế đơn giản với lưới sắt để trồng các loại cây thân leo. Những dây leo này sau này sẽ che phủ mặt tiền ngôi nhà và


Nhóm thiết kế mong muốn mang đến một không gian sống tươi sáng và sinh động cho khu phố với quan niệm nhà đẹp không chỉ dành cho người có thu nhập cao.


Không gian khác trong nhà.




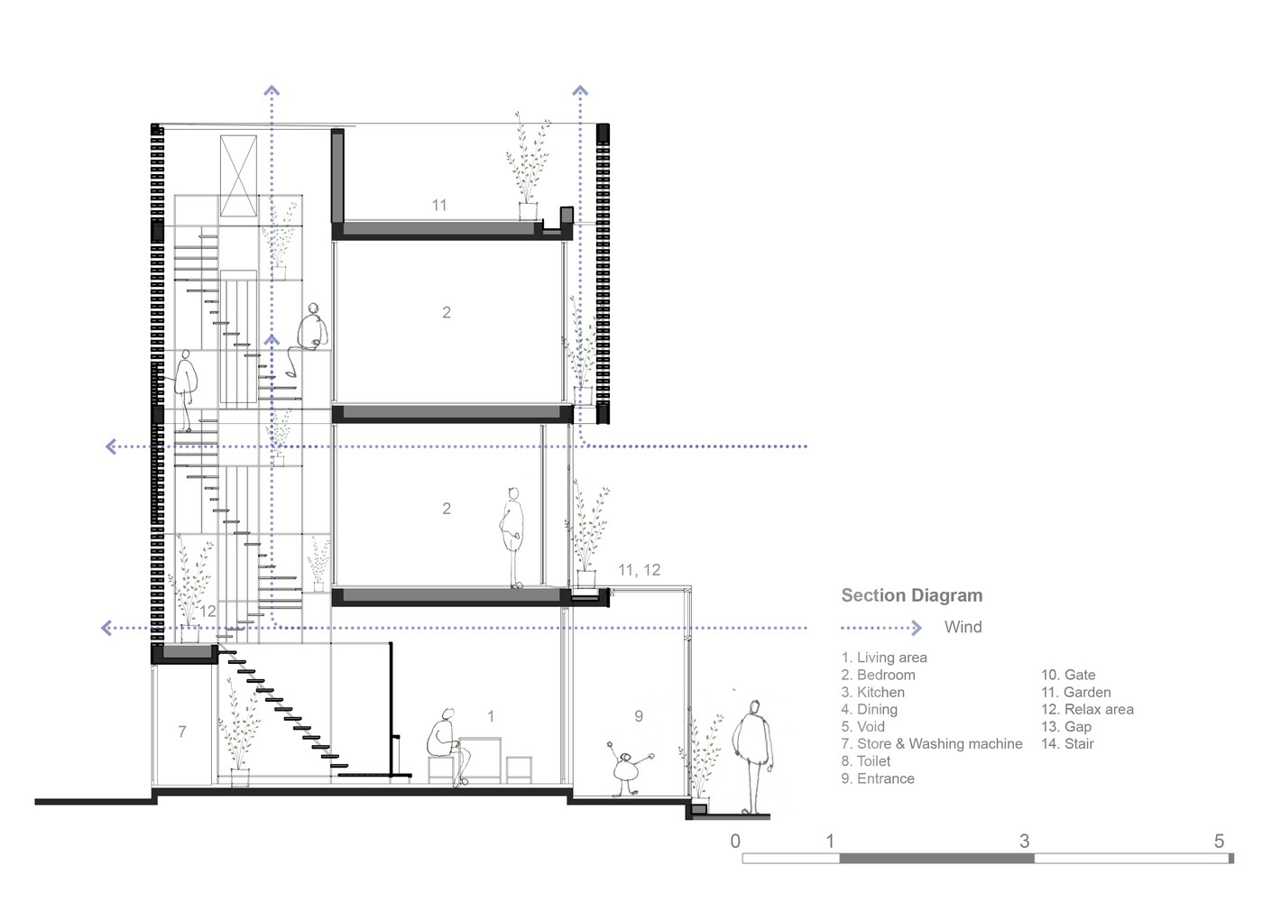
Bản vẽ thiết kế của ngôi nhà.
Theo Archdaily/Tropical Space
Theo Lộc Liên
Tiền phong (https://cafef.vn/)


.jpg)


.jpg)





