Chuyên mục thân mến!
Vợ chồng sắp chuyển về sống trong căn hộ chung cư rộng 49m² có 1 phòng ngủ. Do nhu cầu sử dụng, tôi muốn nhờ chuyên mục tư vấn cải tạo giúp để căn hộ có 2 phòng ngủ mà vẫn thoáng đãng, ấm cúng và tiết kiệm chi phí. Tôi xin chân thành cảm ơn!
(Phạm Hạnh)
Kiến trúc sư tư vấn:
Dựa theo những thông tin mà bạn cung cấp và yêu cầu thiết kế cho căn hộ, chúng tôi xin đưa ra mặt bằng bố trí nội thất để bạn tham khảo.

Mặt bằng hiện trạng của căn hộ.

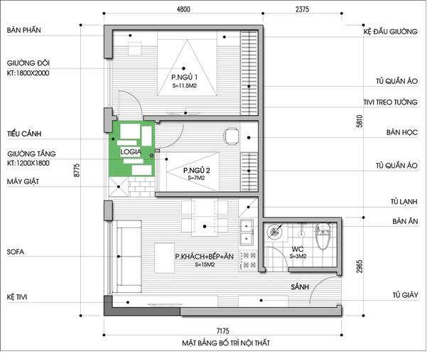
Mặt bằng tư vấn.
Căn hộ của bạn có diện tích khá nhỏ chỉ 49m², tuy nhiên nếu sắp xếp nội thất một cách hợp lý, bạn vẫn sẽ có một không gian sống tiện nghi, thoải mái và có thêm 1 phòng ngủ như mong muốn. Phòng ngủ 1 và WC sẽ được thu hẹp bớt để nhường chỗ cho các không gian khách và bếp, đồng thời có không gian cho phòng ngủ thứ 2.
Về cơ bản, căn hộ của bạn sẽ được chia thành 2 khối không gian. Khối không gian riêng gồm có 2 phòng ngủ bố trí liền kề và lấy sáng từ loggia kiêm tiểu cảnh xanh trong nhà. Khối không gian chung là phòng khách, bếp và ăn được bố trí liên hoàn với nội thất nhỏ gọn và không sử dụng vách ngăn để mang lại cảm giác rộng rãi và thông thoáng hơn.
Về màu sắc trang trí bạn nên chọn các gam màu sáng và trắng làm màu chủ đạo. Phòng ngủ lớn cho bố mẹ sẽ sử dụng những gam màu trẻ trung, hiện đại. Phòng ngủ con nên sử dụng màu sắc vui nhộn và trang trí những hình vẽ ngộ nghĩnh trên tường giúp không gian trở nên sinh động hơn.
Hy vọng với phương án bố trí này của chúng tôi sẽ đáp ứng được tiện nghi cũng như nhu cầu sinh hoạt của bạn và gia đình. Sau đây là một số hình ảnh tham khảo giúp bạn hình dung không gian sống của mình được tốt hơn.

Tủ giầy kiểu dáng đơn giản, thanh lịch.

Tủ bếp với thiết kế thông minh, kiểu dáng tinh tế, màu sắc lịch thiệp và nhẹ nhàng.

Bàn ăn thông minh giúp tiết kiệm diện tích.

Phòng ngủ lớn sử dụng màu sắc trẻ trung, hiện đại.

Giường tầng cho phòng ngủ có diện tích khiêm tốn.

WC nhỏ gọn bố trí hợp lý.

Ban công kết hợp tiểu cảnh thêm phần sinh động.
Theo Như Anh
Phụ nữ Việt Nam (Trích từ https://cafef.vn/)


.jpg)


.jpg)





